Project: Armstrong Residence /

200K Kitchen Reno. and Master Bath Addition

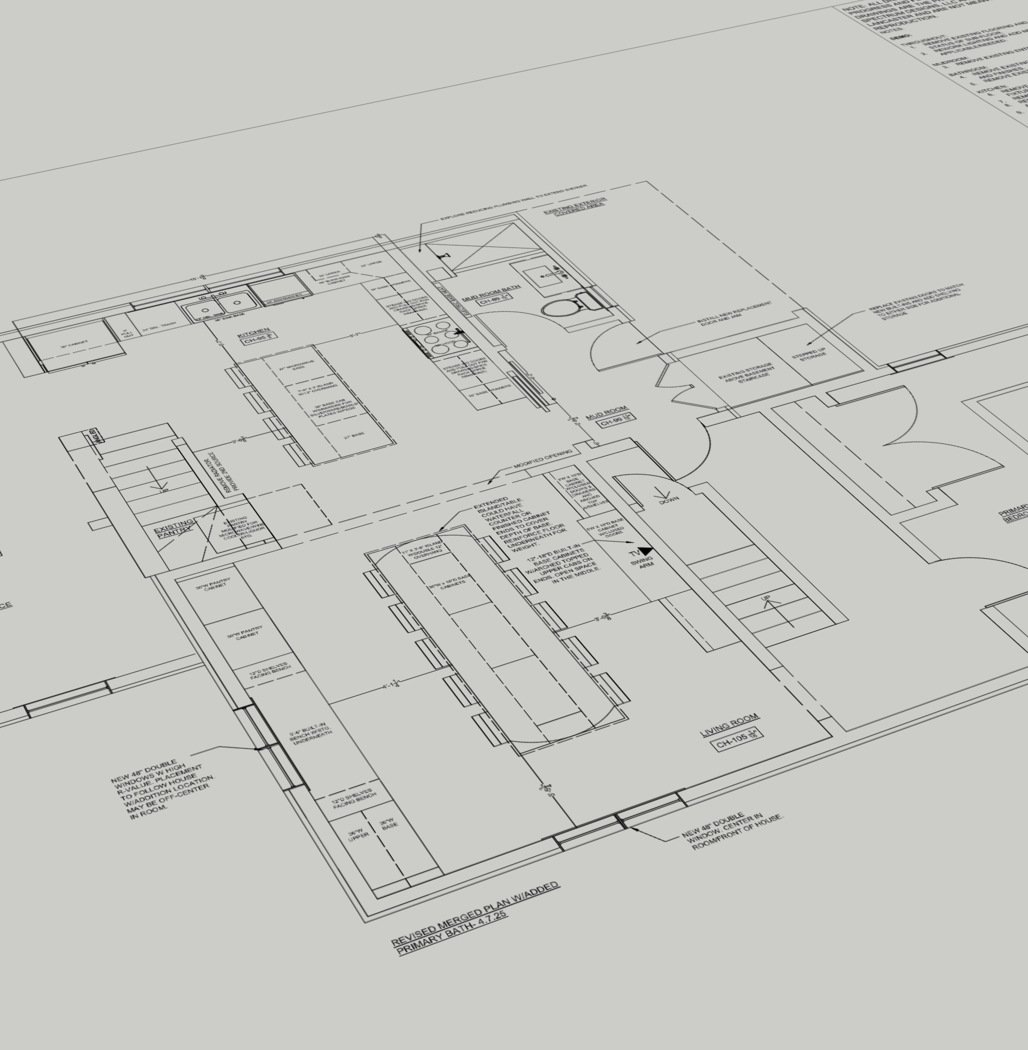
Undertaking a kitchen remodel or a new home addition is a major investment. I bridge the gap between imagination and construction by providing comprehensive design services that let you see the finished product before the first hammer swings. Using detailed blueprints and immersive 3D modeling, I allow you to virtually walk through your new kitchen or addition. This process eliminates the guesswork, ensuring every detail is perfect and giving you total confidence in your investment.

Previous
Previous

Stewart Backyard

Next
Next

College Campus Master Planning